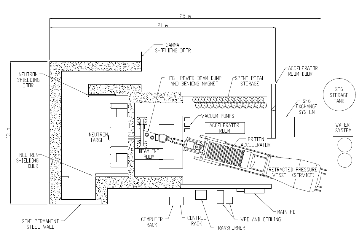
NT High-flux Neutron Source System
- Model #: n.H+26.30
- Last modification: Jun/9/2025
contact us about this product
Info Coming Soon
A Compact Neutron Source from Neutron Therapeutics
For Non-medical applications
Uses a rotating, solid lithium target for high flux neutron production.
Product Features:
- 2.6 MeV Electrostatic Proton Accelerator
- Reliable operation at 30 mA
- Rotating Solid Lithium Target
- Excellent neutron beam quality
- Solid target is safe and reliable
- Excellent lifetime and automated service minimize cost of ownership
